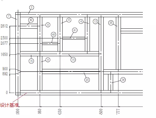
两种不同的设计基准,哪一个不合理?
两个钢结构的俯视图纸中,出现两种不同的尺寸标注方法,即设计基准的选择不一样。那大家觉得哪个设计基准的选择比较合理?为什么?


相信很多人都会第一时间选择第二种标注,那这两种不同的设计基准,为什么第一个不合理?
我们先来看看书上对基准的定义
是指零件或装配体上用来确定其他点、线、面位置的那些点、线、面。
基准又分为设计基准和工艺基准
工艺基准又分为:定位基准、测量基准和装配基准。
一般要求设计基准、测量基准和装配基准,三者要统一,但是,实际上三者统一的情况比较少,比如,上面底座的焊接就是设计基准和测量基准不统一的情况。基准不统一的时候,就要进行尺寸链的换算。
基准1是设计基准,设计者在设计零件时,根据基准1零件在装配结构中的装配关系以及零件本身结构要素之间的相互位置关系,确定标注尺寸(或角度)的起始位置。这些尺寸(或角度)的起始位置称作设计基准。

简言之,设计图样上所采用的基准就是设计基准
工艺基准(镗孔)
基准1零件在加工、测量和装配过程中所采用白的基准称为工艺基准。基准2是工艺基准,40这个尺寸不能基准1随便定,要进行计算。


定位基准的选择原则一
选最大尺寸的表面为安装面,选最长距离的表面为导向面,选最小尺寸的表面为支承面

首先考虑保证空间位置精度,再考虑保证尺寸精度。

应尽量选择零件的主要表面为定位基准,因为主要表面是决定该零件其他表面的基准,也就是主要设计基准(340)

定位基准应有利于夹紧,在加工过程中稳定可靠
