切削件结构设计:合理选择毛坯

2020-10-18 23:39:43

  切削件结构设计:合理选择毛坯
图 例 说明 切削件结构设计:合理选择毛坯

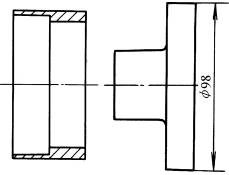
不合理

  

切削件结构设计:合理选择毛坯

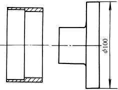
   合理 改进后,在满足使用功能的前提下,将右部壁厚减小,可直接采用管材毛坯;改进后,可用f100的圆钢毛坯加工而成,毛坯尺寸减小,加工量随之减小

下一篇:机械结构设计四大基本原则
上一篇:切削件结构设计:统一零件尺寸使用标准刀量具
返回顶部小火箭