陶瓷件结构设计示例
瓷件结构设计示例图 例 说明
不合理
合 理 壁厚过薄压制成型易产生裂纹和变形,因此要保证一定壁厚和孔间距
不合理
合 理 改进后,尖锐棱边采用圆角或倒角过渡,便于压制成型粉末移动,避免应力集中
不合理
合 理 改进后,内孔设置一定锥度便于脱模;台阶厚度增加,可提高其强度和耐用性;倒角末端设计平台,可消除冲模的尖锐末端
不合理
合 理 改进后,各部分壁厚均匀,避免烧制变形和裂纹
不合理
合 理 改进后,大平面作成一定锥度或增设加强肋,避免底部塌陷
不合理
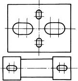
合 理 陶瓷件弹性变形很小,改进后,采用长圆孔结构,便于装配
不合理
合 理 改进后,简化了结构形式,便于模具加工
不合理
合 理 改进后,由封闭孔变为开通孔,便于模具制造
